configuração dos espaços públicos – QuadraNet Globocabo
paulo mendes da rocha + mmbb
infra-estrutura
2000
são paulo - sp
projeto
O presente trabalho assumiu a forma, no seu desenvolvimento, de ensaio teórico urbanização muito interessante, exemplificando, com a sua parte formal, uma
intervenção nitidamente plantada para amparar e estimular as transformações
pretendidas no âmbito da recreação e entretenimento cultural dos usuários, funcionários das empresas e a população de modo geral.
Este estímulo e sustentação estará orientado para uma abertura no plano da convivência urbana alem do trabalho tarefa, uma abertura para a criatividade no tempo livre espontâneo ou dirigido: cursos de extensão, aprimoramento, divulgação, espetáculos, encontros e reuniões. Uma operação nítida de política urbana, em que o previsto conta com o enriquecimento do imprevisível, da iniciativa individual.
O aspecto muito interessante, ressaltado, diz respeito a origem deste trabalho sob dois
tópicos principais: a iniciativa privada e a crítica implícita à forma de ocupação do
velho traçado da cidade por novas estruturas, atuais, de caráter empresarial e de
serviços.
A iniciativa privada com visão crítica sobre a idéia de um desenho moderno para a cidade – que não se realiza no edifício como fato isolado – é o grande destaque desta idéia lançada pela Net GloboCabo, que tentaremos resumir neste breve primeiro estudo.
Objeto-Programa
1. Ampliar, adequar e criar novas áreas para a convivência livre e institucional entre os
funcionários das empresas e visitantes.
2. Caracterizar espaços livres de praças, passeios e jardins, comuns às construções
sedes das empresas.
3. Localizar serviços de apoio, restaurantes, cafés e recintos para encontros, festas e
reuniões.
4. Adaptar espaços existentes para auditórios e novos locais para cursos e reuniões de
trabalho.
5. Rever tráfego e áreas de estacionamentos. Providenciar a liberação de novos espaços
públicos.
6. Reconfigurar as áreas de recreação nas empresas e seu uso para a nova orientação da
área.
7. Destinar o presente ensaio para um documento de abertura de seminário entre as empresas da área, sob a orientação da Net GloboCabo, com o fim de discutir e aprimorar programas e medidas concretas de implantação destas idéias.
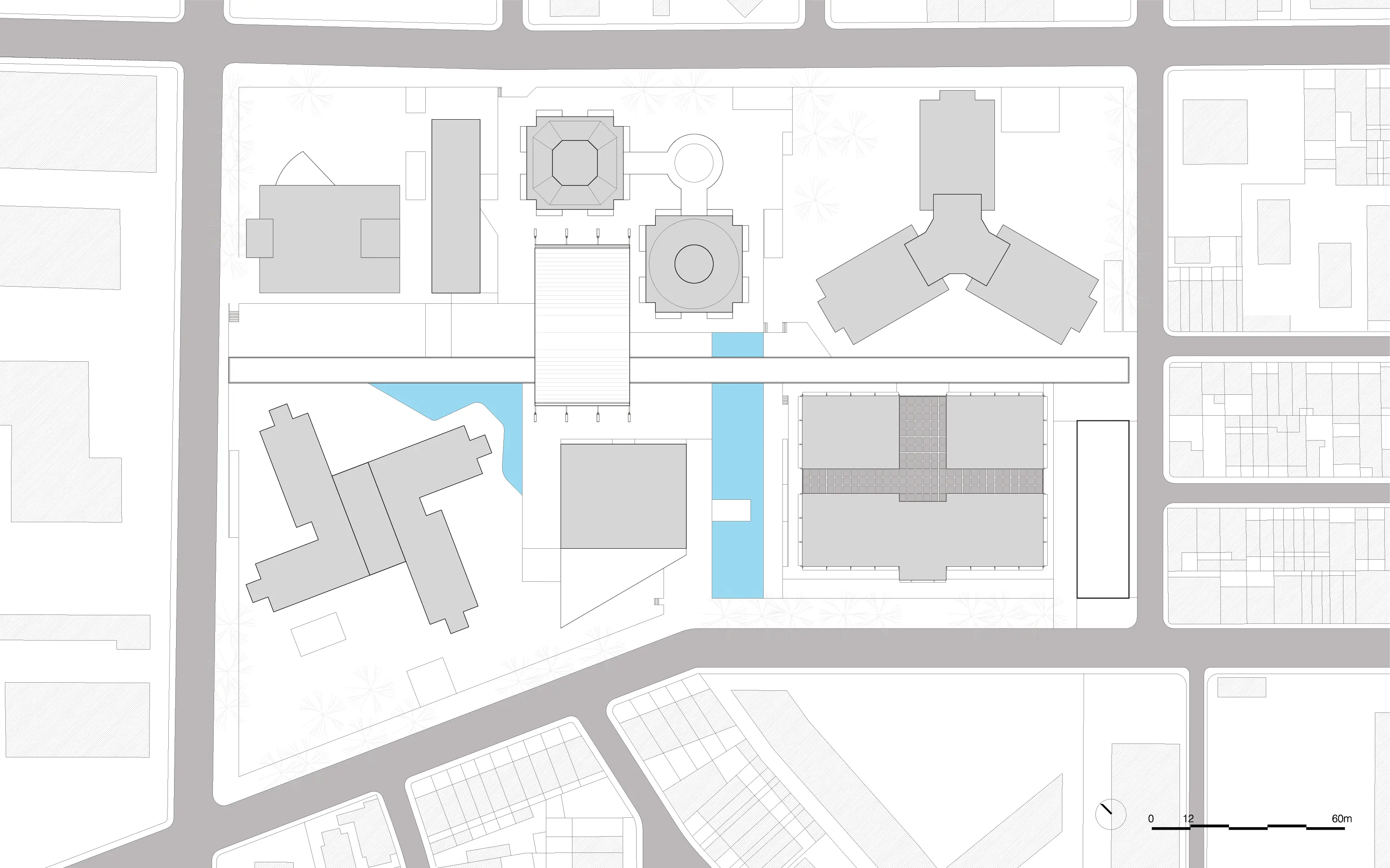
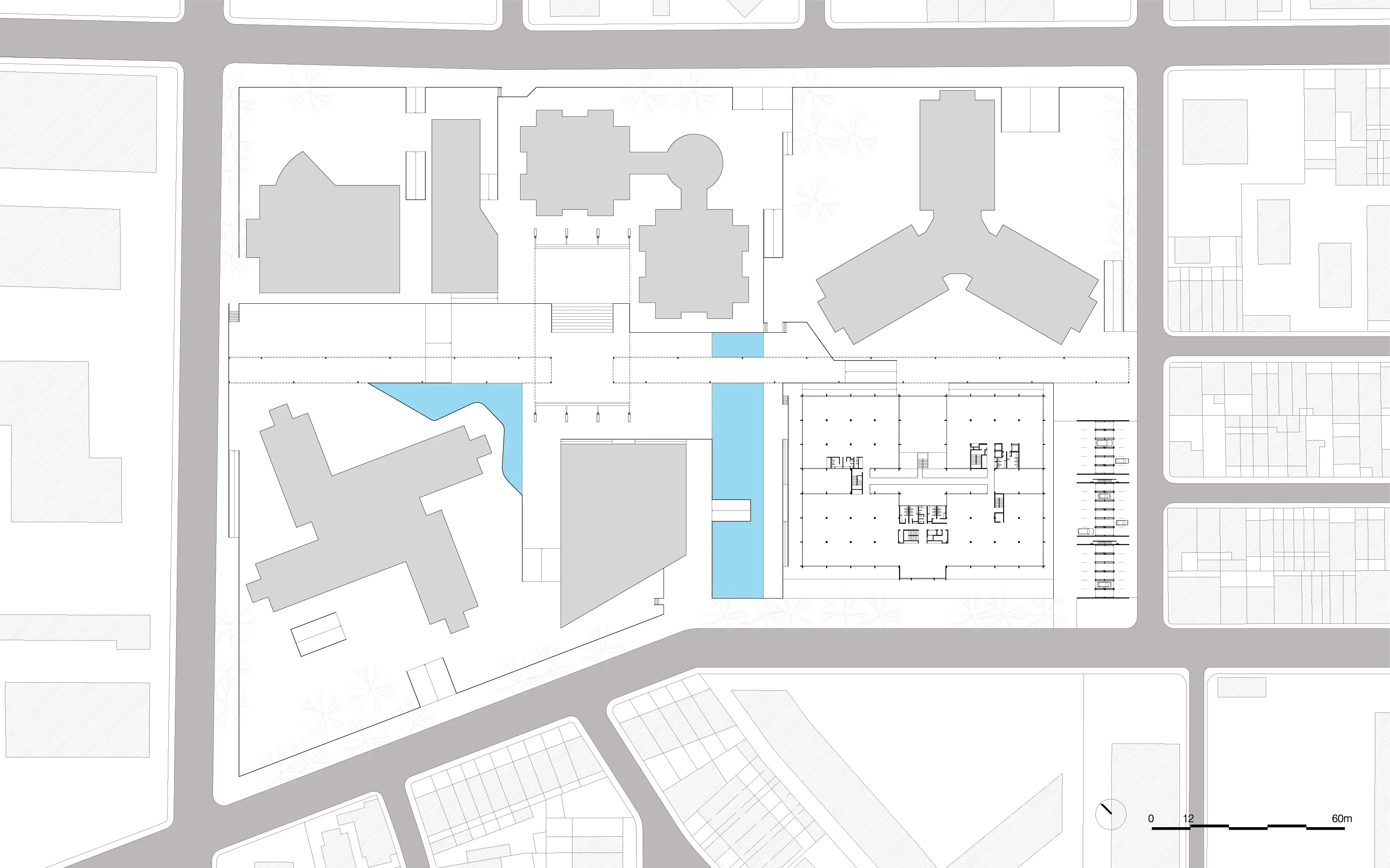
Intervenções Propostas
1. Rever o plano geral de acessos de veículos, praças de estacionamento e das vias de
pedestres.
2. Promover a ampliação das áreas de ajardinamento e de passeio público, que
deveriam, pouco a pouco, receber tratamento coerente e de conjunto esteticamente
configurado, na pavimentação e no arvoredo.
3. Abrir todo o espaço ao rés do chão, entre as sedes das empresas, interligando os
vestíbulos e as áreas já existentes coerentes com os objetivos do programa deste
estudo. Construir os acessos, escadarias ou rampas necessárias para a fluição destes
novos caminhos.
4. Construir uma cobertura cristalina, unindo, na cota mais alta, os três blocos da Net
GloboCabo, fazendo aparecer um novo espaço para o programa.
5. Construir uma garagem vertical mecanizada, para cerca de novecentas vagas, livrando toda a área da inconveniente ocupação com estacionamentos e ainda prevendo novos
espaços para visitantes. Reservatório elevado para serviços de manutenção geral e
jardinagem da área, com 450 m3.
6. Livrar alguns espaços de garagens nos subsolos, já construídos, para que possam
ter novos destinos previstos neste programa, como já se vê com êxito na sede da Net
GloboCabo. Também, pelas ligações diretas através das rampas com as áreas jardinadas, estes espaços são ótimos recintos para escolas infantis e creches, indispensáveis ao programa deste estudo.
7. Construir uma ligação nítida e coberta, para pedestres, entre as ruas Antônio
Oliveira e Av. Ornelas Guerra, eixo e passeio público marcante do conjunto, com estrutura leve, metálica, branca.
8. Construir amplo recinto de sombra e abrigo festivo em ponto estratégico deste passeio, com cerca de 1500 m2, também uma leve estrutura metálica branca. Local de inúmeras e variadas atividades culturais, café, encontros, espetáculos.
9. Contar com o incremento do transporte público, principalmente o trem urbano junto a
avenida marginal e as linhas de ônibus. Prever ônibus circular do conjunto até o trem.
10. Estudar a urbanização, mais para o futuro, das quadras vizinhas, promovendo o
investimento das empresas na área imobiliária, incentivando o uso diversificado
– habitação, serviços, comércio, cultura, educação, saúde.
Estas seriam, em linhas gerais, as marcas primeiras de implantação desta idéia da Net
arquitetura
Paulo Mendes da Rocha
colaboradores
Angelo Bucci
Fernando de Mello Franco
Marta Moreira
Milton Braga
equipe
Eduardo Ferroni
Maria Julia Herklotz
Martin Francopecci
Rastko Kovacevic Key
Roberto Klein
consultoria estrutural
Jorge Zaven Kurdjian