Pular para o conteúdo
MMBB
  • escritório
  • arquitetos
  • ensaios
  • publicações
  • contato

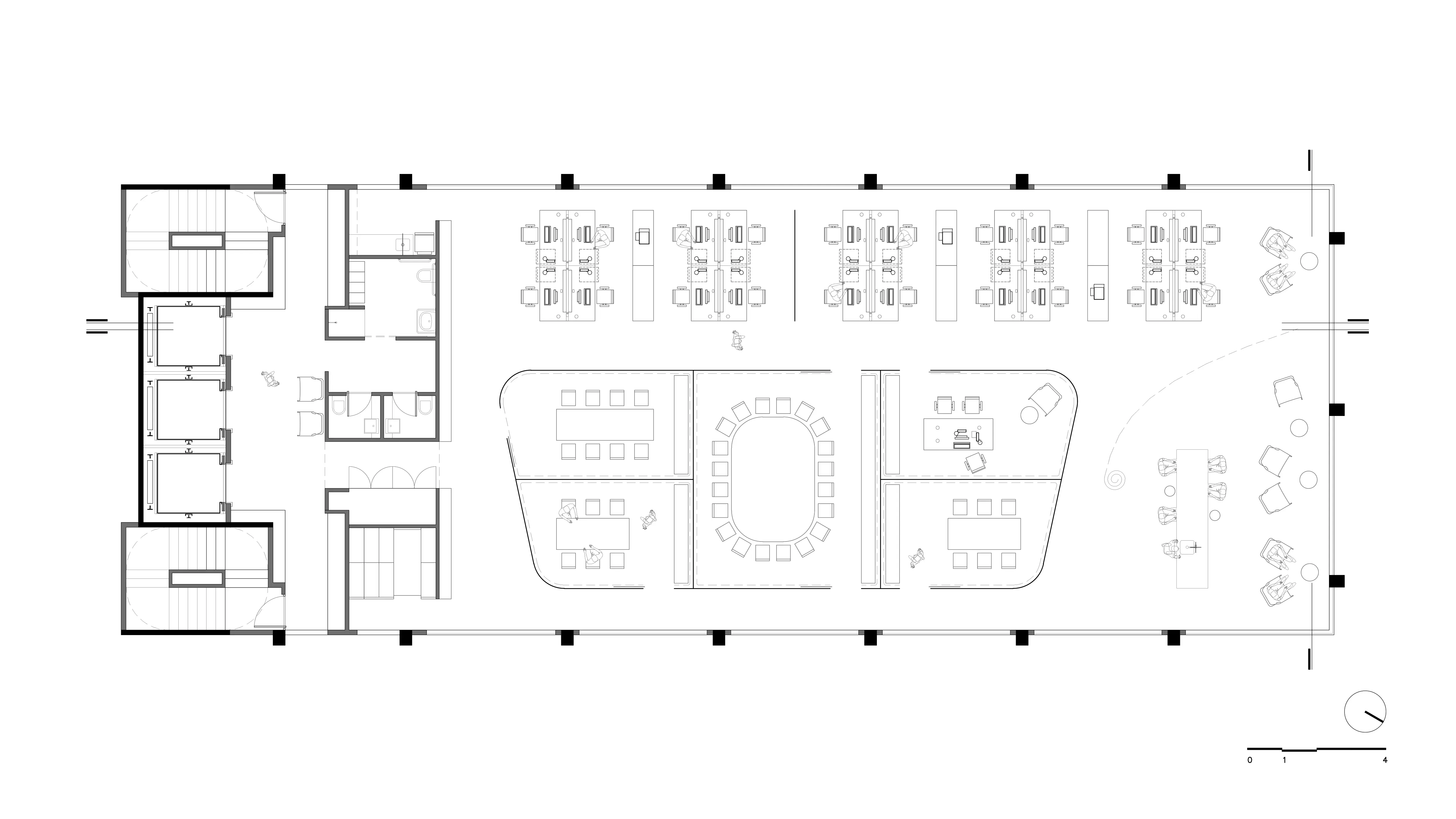
estudo para sede de uma holding

mmbb

serviços

2016

são paulo - sp

projeto

© MMBB

@mmbb_arquitetos

rua General Jardim, 618 - CJ 11

São Paulo, SP - Brasil

mmbb@mmbb.com.br T