sede da banda sinfônica do exército
mmbb
equipamento público
2007
são paulo - sp
projeto
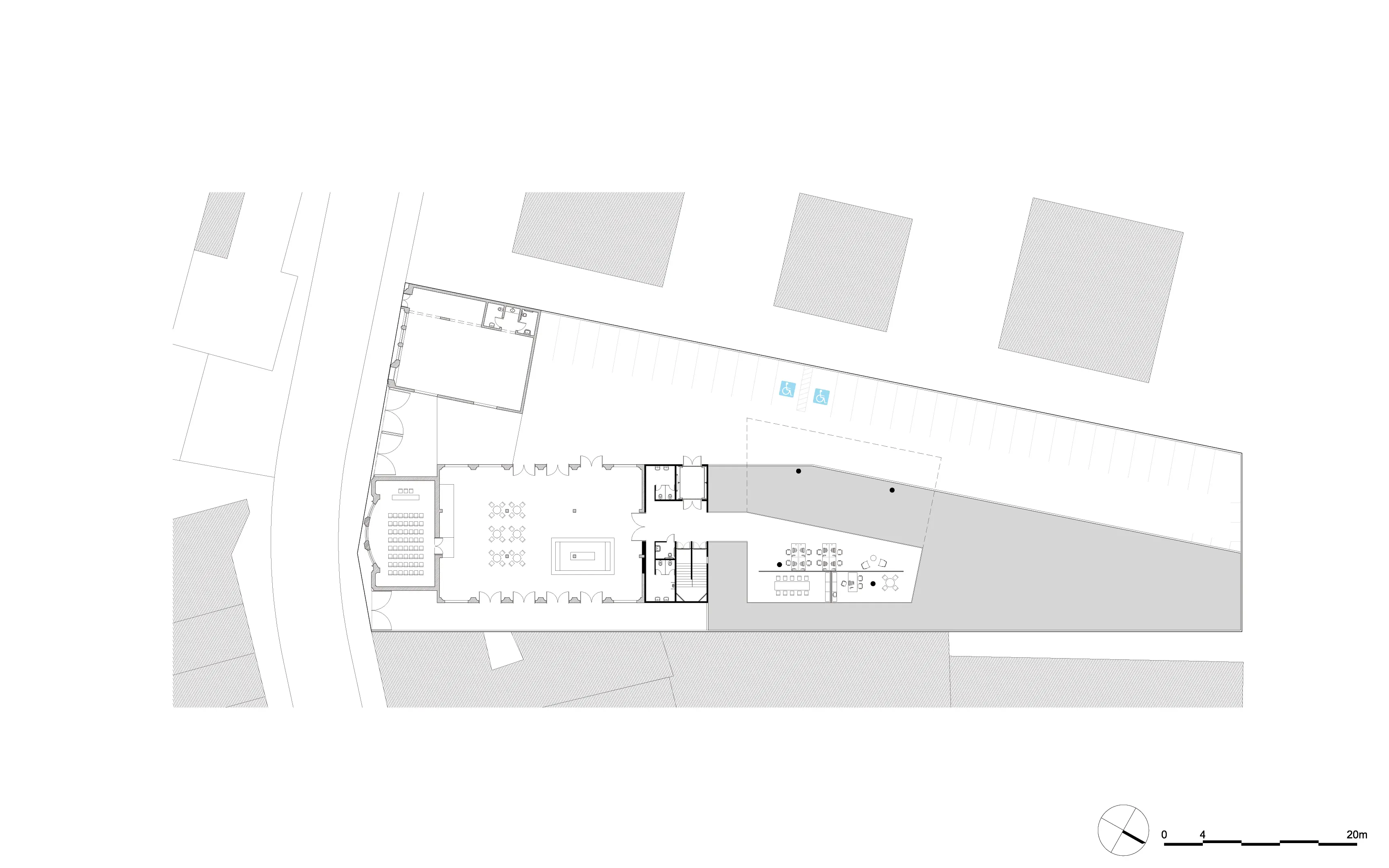
Das construções hoje existentes no terreno será aproveitado um pavilhão que conta com amplos espaços em dois andares, onde serão instalados a sala principal de ensaio, no pavimento superior, e os espaços de acolhimento da sede, no térreo; e, ainda, uma pequena construção anexa junto ao limite do terreno que faz divisa com o edifício de habitações, que abrigará uma loja com acesso direto pela rua.
O restante do programa será acomodado em novos espaços que serão construídos atrás do pavilhão preservado:
Em um bloco de serviços, configurado como uma extensão do volume existente, serão acomodados a circulação vertical, que contará com escada protegida pressurizada e um monta carga/elevador para 30 pessoas, os depósitos, os sanitários – no térreo e no primeiro andar – e as casas de máquinas – no subsolo, no ático e na cobertura. Em um segundo bloco, dedicado à escola de música e configurado como um volume suspenso sobre pilotis no nível do terreno natural, foram previstas a administração da sede no nível da rua – térreo do conjunto – e nove salas de ensaio no primeiro pavimento. Estas últimas apresentam geometrias não ortogonais e grande altura livre (4,85 m), favoráveis ao desempenho acústico.
Apresentam também diferentes tamanhos, variando de 21,0 a 43,3 m2 e servirão tanto aos alunos como aos ensaios de naipes da banda.
Em um terceiro bloco, implantado no nível natural do terreno da parte posterior do lote e caracterizado, assim, como um subsolo em relação ao nível da rua – térreo do conjunto – foram projetados os camarins, os alojamentos e os vestiários dos integrantes da banda, bem como os indispensáveis apoios: uma área de estar com uma pequena copa, a rouparia e uma área de serviço. Os camarins, alojamentos e vestiários foram organizados em 3 conjuntos iguais, com capacidade para até 20 camas e serão iluminados e ventilados naturalmente por aberturas voltadas para o jardim previsto no terreno natural adjacente.
Na cobertura deste bloco em subsolo aberto foram localizadas as vagas de estacionamento. A sala principal de ensaio poderá, eventualmente, ser usada como uma pequena sala de concertos e contará com bancos corridos em suas duas laterais. No mesmo nível da sala de concertos foi previsto um depósito de instrumentos. No térreo, o acolhimento contará com um pequeno café junto à recepção e servirá também como “foyer” para a sala principal de ensaios. Ainda no térreo do pavilhão existente, na sala anexa na prumada do depósito de instrumentos, foi previsto um pequeno auditório para 60 lugares.
arquitetura
Fernando de Mello Franco
Marta Moreira
Milton Braga
colaboradores
Marina Sabino
Marcia Terazaki
Thiago Rolemberg
Cecilia Góes
Lucas Girard
Gabriel Manzi
perspectivas
Victor Paixão