sesc tatuapé
paulo mendes da rocha + mmbb
equipamento público
1996
são paulo - sp
projeto - concurso
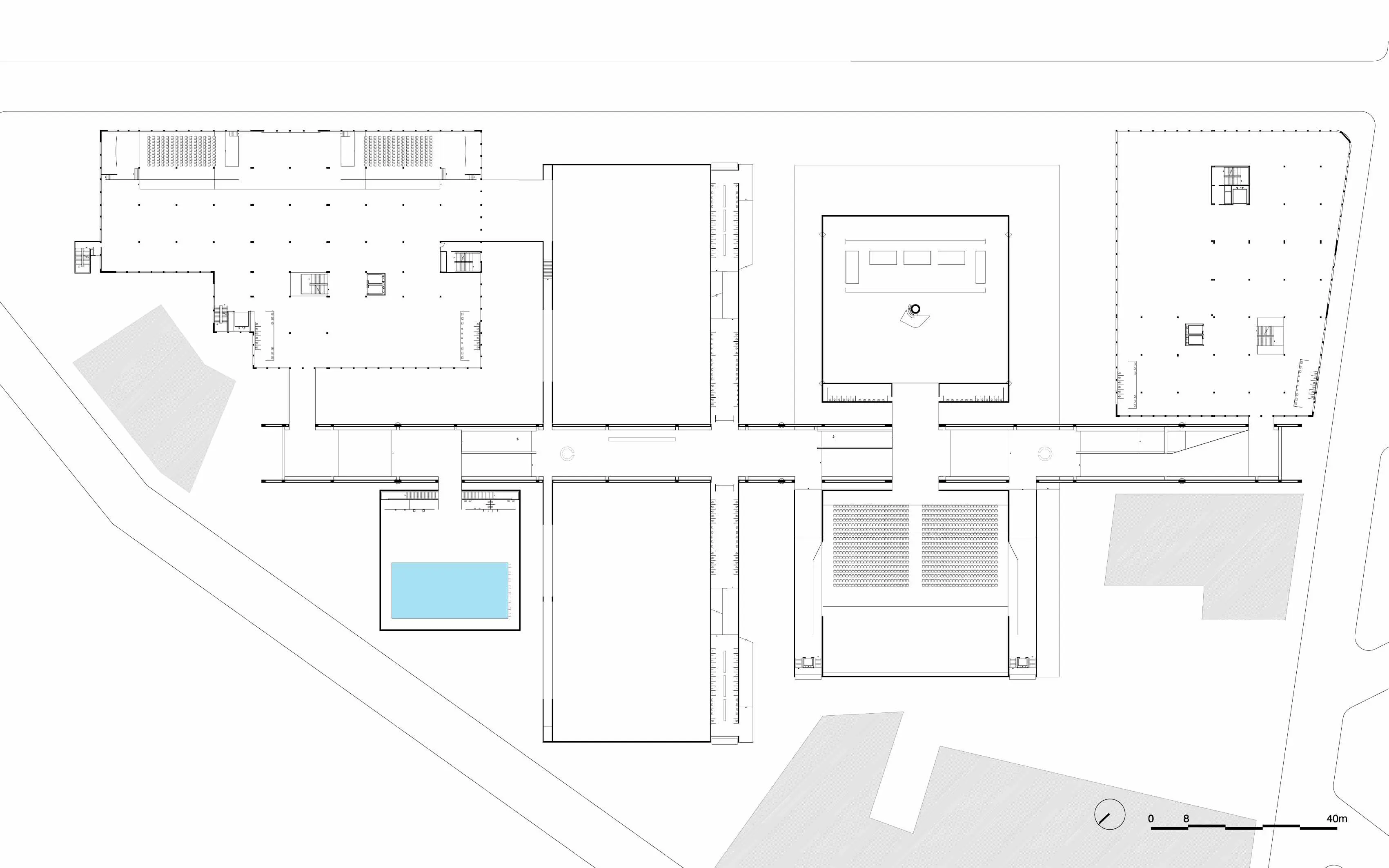
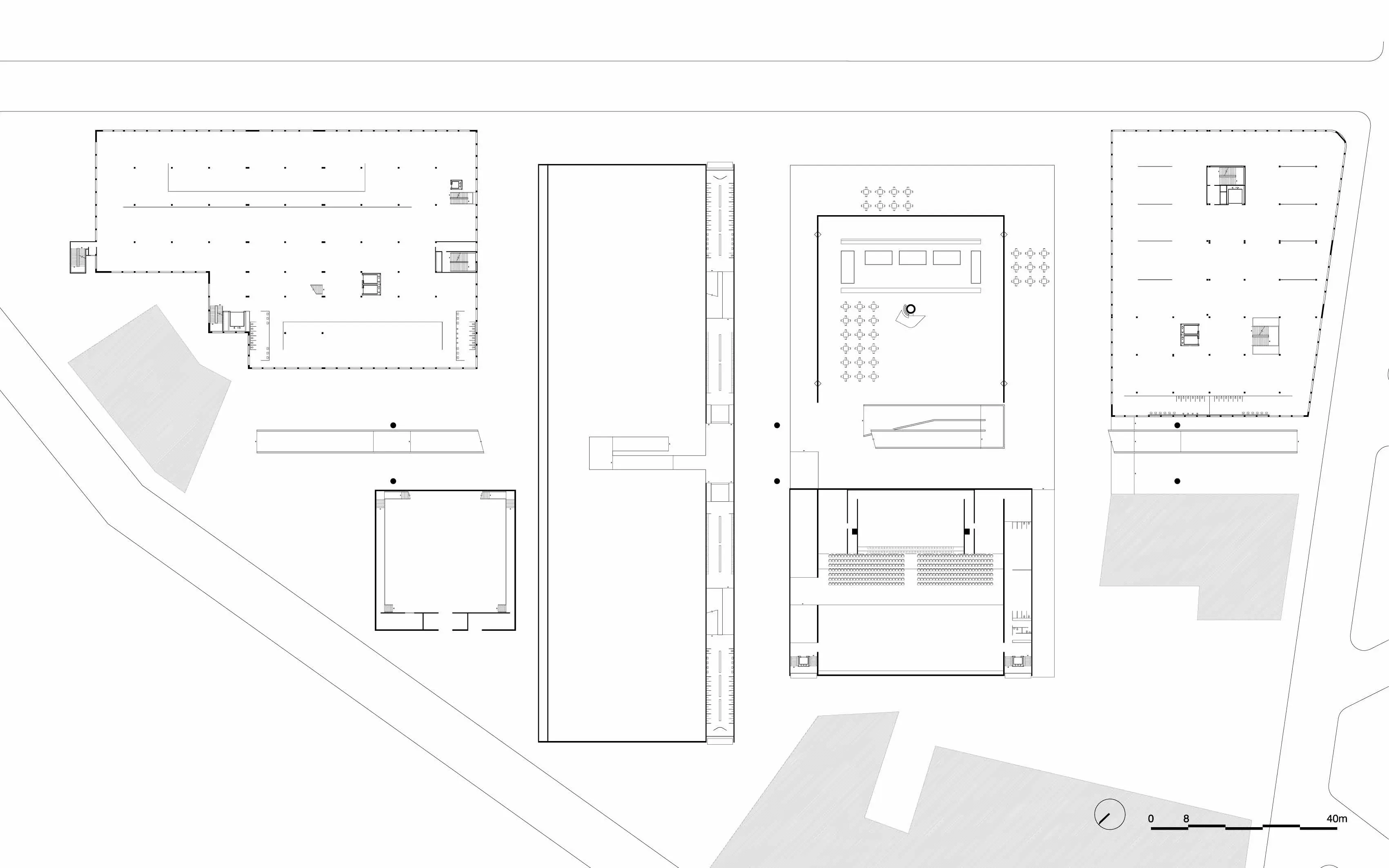
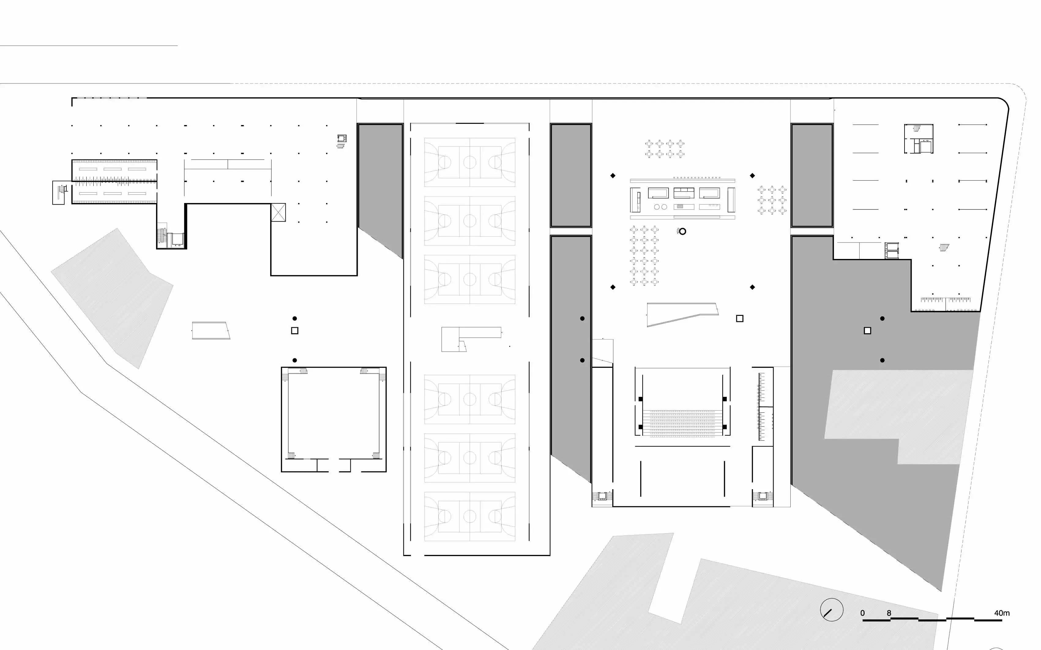
O projeto sesc para a construção de centros populares de esporte e cultura é experimental tanto quanto a visão moderna de urbanismo. Enquanto idéia ensaiada nas disposições espaciais, o que prevalece não é um paradigma formal. O que comove é a revelação dos objetivos além da técnica. Uma impregnação histórica, popular, uma oportuna engenhosidade, as instalações surgem na forma de uma arquitetura com o poder de urbanizar um lugar descrevendo sua transformação.
Nesta área do tatuapé com as instalações remanescentes da santista, o grande perímetro da quadra não deve ser fechado. Ao contrário, o bairro deve fluir através do recinto com ruas, vielas, largos, acrescidos das quatro calçadas que circundam a quadra – visuais amplas no nível das ruas. Os enclaves poderão se abrir para bares, livrarias, lojinhas. As instalações do sesc flutuam sobre esses espaços públicos e adquirem uma espacialidade atraente, peculiar, um novo lugar.
Uma ponte atravessa toda a área de leste a oeste, endereçando os acessos para os usuários de transportes públicos, logradouros novos, arborizados, contendo comércio local.
Vestíbulo das principais áreas de atividades do conjunto, a ponte centraliza informações, o intercâmbio entre os espaços – um circuito interno contínuo entre os edifícios, estratégica circulação também para as atividades de manutenção e administração.
Ao longo de toda a sua cobertura, a ponte dispõe um grande solarium com duas piscinas.Uma praia desenhada sem muros, a céu aberto.
arquitetura
Paulo Mendes da Rocha
colaboradores
Angelo Bucci
Fernando de Mello Franco
Marta Moreira
Milton Braga
equipe
Carmem Moraes
José Barbedo
Keila Costa