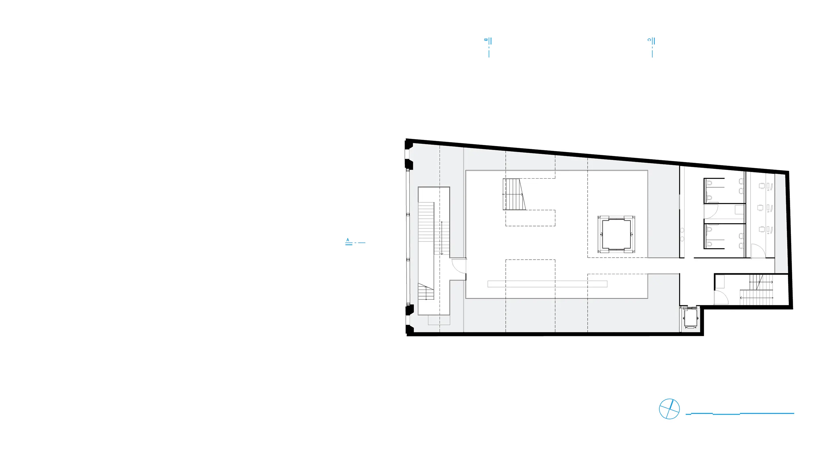
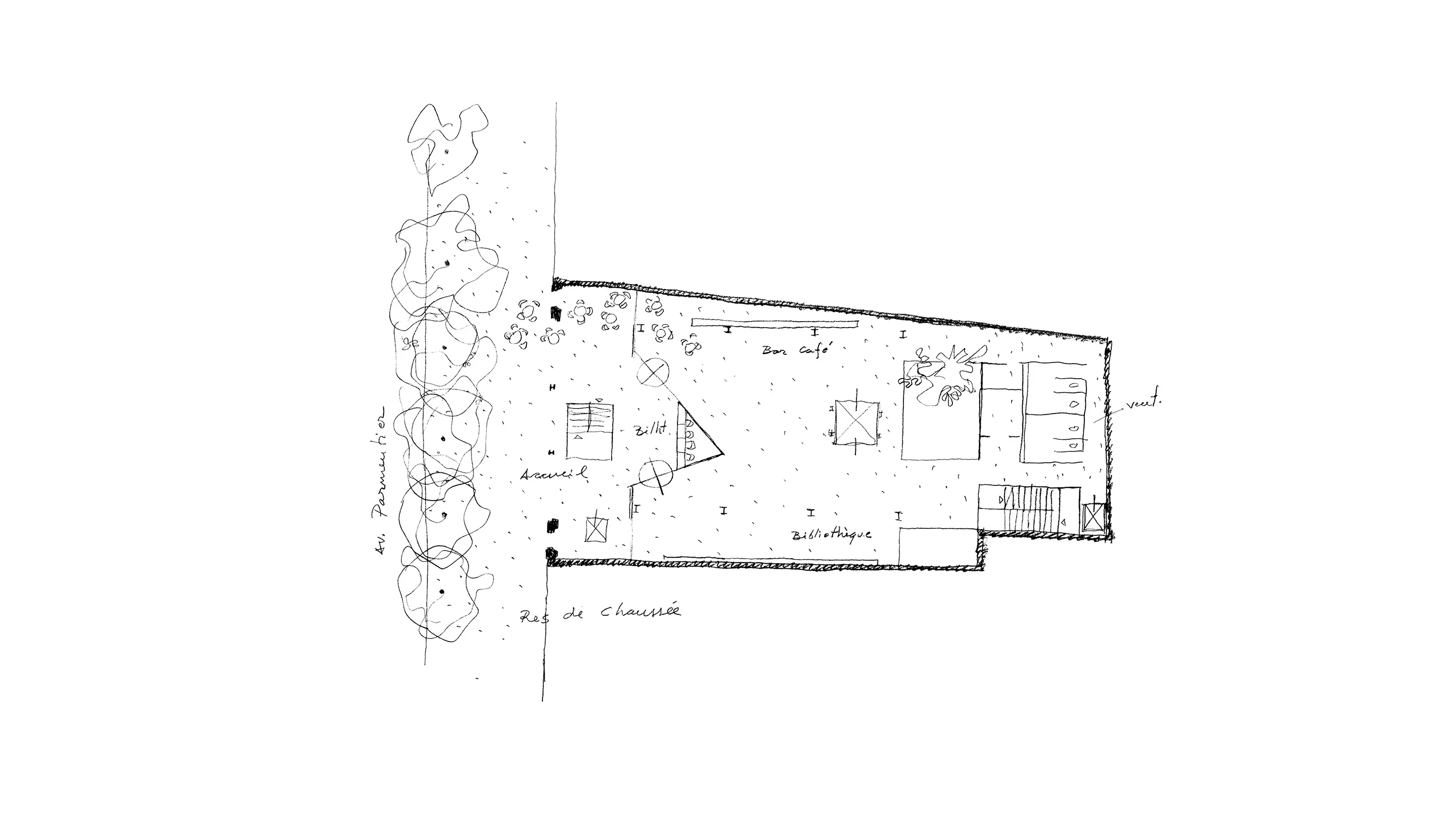
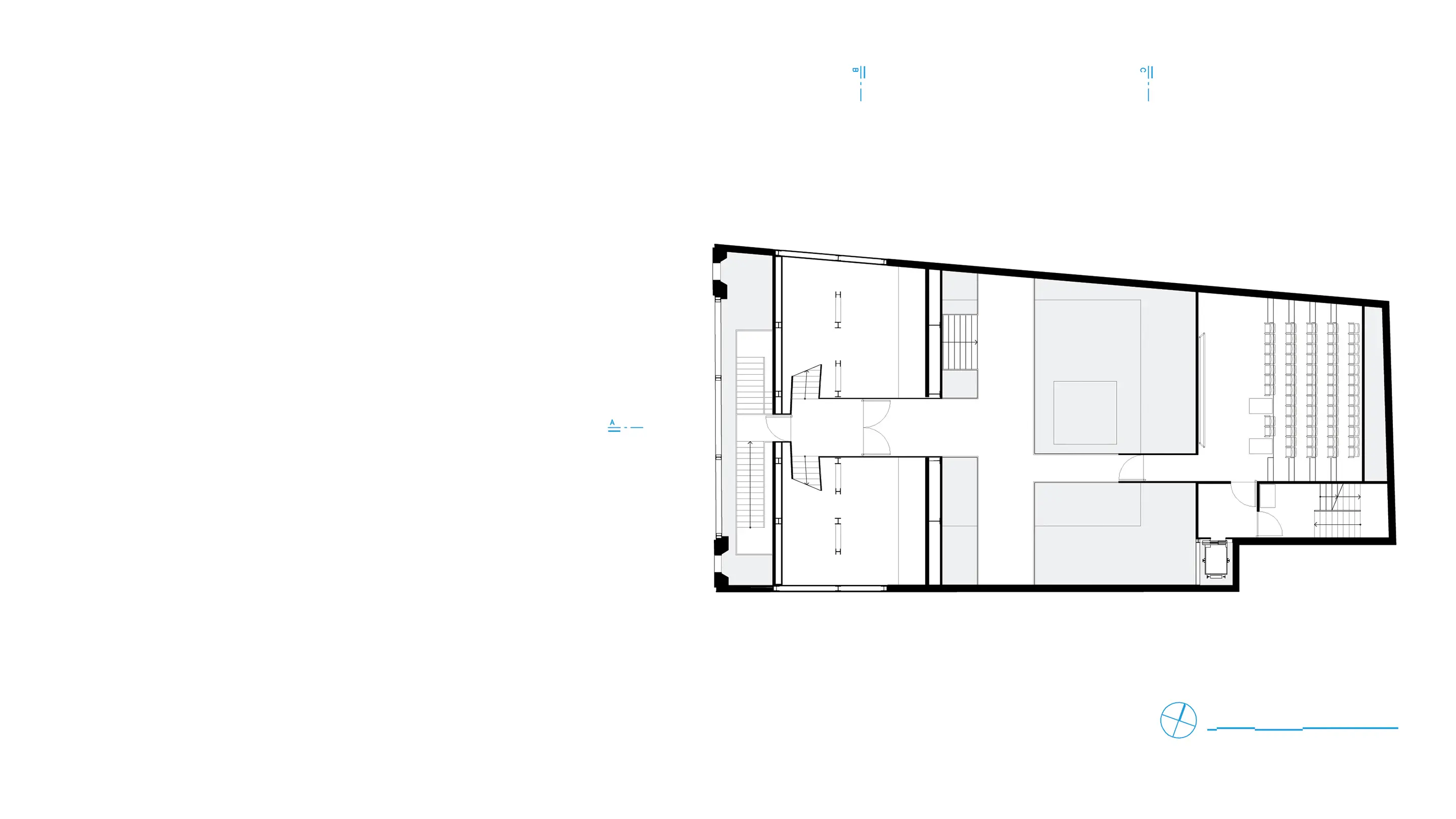
sous-station voltaire
paulo mendes da rocha + mmbb
equipamento público
2015
paris - frança
projeto
Paris, França, 2015
arquitetura
Paulo Mendes da Rocha & MMBB Arquitetos
Marta Moreira
Milton Braga
colaboradores
Adriano Bergemann
Gleuson Pinheiro
Guilherme Pianca
Lucas Vieira
Maria João Figueiredo
Martin Benavidez
maquete física
Ana Carolina Mamede
Gabriela Schon Villas Boas
Rafael Monteiro
área construída
2.500 m²